Briefs about Aspire Residence of Cyberjaya

80 views
Skip to first unread message

Property Online

unread,
Jan 5, 2016, 6:24:49 AM1/5/16
to properties-...@googlegroups.com, hartanahkl2014, putrapr...@googlegroups.com, malaysian-pr...@googlegroups.com, rinapro...@googlegroups.com
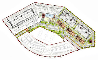
The Full Plots of Aspire Residence, Cyberjaya

The Exact View of the Future Aspire Residence, Cyberjaya

Pool view with Club House

Ample open air car parks for visitors beside Club House

7.5 Storey Covered Car Park Bays next to Apartments

The Cross Section of Cyberjaya Aspire Residence



Aspire Residence Floor Plan




Site as seen in December 2015

Early earthworks already done




Aspire Residence
* Total of 2,270 units. Phase 1 blocks to be completed by 2018 (3 years).
* Each block with minimum of 388 ~ 392 units of Apartments.
* Building height at minimum of 24 to 25 storey.
* Each storey comes with 16 units (except ground floor or penthouse).
* Each level with 4 working lifts (1 to be used as goods lift).

4 Types of unit designed here but we started with Type A first.
Type A: Sizes of unit all are at 900 sf.
Comes with 3 rooms
and 2 baths

All units are FREEHOLD

Price offered starts at RM 418,000 @ unit.

How to make booking of unit & what is the best offer for every unit purchased?

* Booking deposit at RM 3,000
* 7% Bumi discount
* Free SPA (but not on MOT, disbursement and stamp duties)
* SPA to be executed within 21 days
* Cash buyers to pay 10% upon SPA @ & clear balance by staggered upon progressive construction made till fully completed 100% (within 3 years expected till CFO @ somewhere in year 2018).

Upon the need to old folks @ OKU members, the developer have some few reserved units here**
* 20% discount on each purchased (Only for OKU card holders).
* Special reserve units are given.
   ** OKU ~ 5 units
   ** Old Folks ~ 3 units (no OKU discounts).
* Total number of units complies with the approved loan buyers***

Free biz** given to every buyer at this moment are as below
* 2 units of water heaters (fitted at bathrooms)
* Full kitchen cabinets + hood & hub
* Front door grills
* 2 units of car parks space 
* Free maintenance for 1 year from completion 

Buyer's condition of purchase (Govern by MOF)***
* 1st time house buyer
* First house for one family
* Income less than RM 10,000**
* Salable only after 10 years

Panel of Bankers
* Maybank
* Cimb
* MBSB
* BSN
* RHB
* Affin Islamic

Launch date
Feb 2016 / March 2016

Note: The signage ** stands for Existing Campaign Offer Given till any changes made.

Meanwhile, we encourage to make an early Booking Registration with
* Full name to be given
* IC Number to be given
* Contact Numbers to be given 
* Residential Address to be given
* Working Address to be given
* Working appoint letter @ Confirmation letter to be given
* Salary to be given (salary slips)

All these info can be sent through our e-mail:-
cyberjaya...@gmail.com

Attention to:- 

En Putra REN 00201
Senior Real Estate Negotiator
IEC Properties E(3)1240
012-2615337
010-3056823

Reply all
Reply to author
Forward
0 new messages